
Committente: ECO.ER S.R.L.
Prestazioni: Progettazione Definitiva, Esecutiva e Direzione Lavorii
Periodo di Esecuzione: 2009-2012
Attività: Opere Edili Architettoniche e Strutturali, Impianti Meccanici ed Elettrici
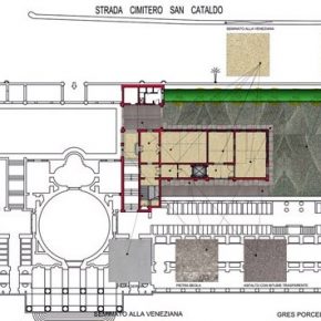
L’edificio che ospita il nuovo impianto di cremazione e tutti gli spazi necessari al suo corretto funzionamento si trova al centro del Cimitero San Cataldo, un cimitero monumentale realizzato a partire dal 1860 dall’Ingegnere Architetto Cesare Costa. Il fabbricato su cui si è intervenuti è un edificio che realizzato tra il 1860 e 1863, è stato in parte demolito negli anni ’60 del secolo scorso, per far posto ad una nuova galleria esterna realizzata in aderenza al vecchio fabbricato. Trattandosi di un intervento di restauro e rifunzionalizzazione di un immobile sottoposto a tutela della Sovrintendenza si è intervenuti nel modo meno impattante e traumatico possibile sia dal punto di vista strutturale che architettonico, mantenendo al massimo quella armonia che si è venuta a consolidare negli anni.
Prestazioni: Progettazione Definitiva, Esecutiva e Direzione Lavorii
Periodo di Esecuzione: 2009-2012
Attività: Opere Edili Architettoniche e Strutturali, Impianti Meccanici ed Elettrici
L’edificio che ospita il nuovo impianto di cremazione e tutti gli spazi necessari al suo corretto funzionamento si trova al centro del Cimitero San Cataldo, un cimitero monumentale realizzato a partire dal 1860 dall’Ingegnere Architetto Cesare Costa. Il fabbricato su cui si è intervenuti è un edificio che realizzato tra il 1860 e 1863, è stato in parte demolito negli anni ’60 del secolo scorso, per far posto ad una nuova galleria esterna realizzata in aderenza al vecchio fabbricato. Trattandosi di un intervento di restauro e rifunzionalizzazione di un immobile sottoposto a tutela della Sovrintendenza si è intervenuti nel modo meno impattante e traumatico possibile sia dal punto di vista strutturale che architettonico, mantenendo al massimo quella armonia che si è venuta a consolidare negli anni.





