
Committente: RIMINI & RIMINI S.p.A. e RESIDENCE DEL MARE s.r.l.
Prestazioni: Progettazione definitiva ed esecutiva
Periodo di Esecuzione: 2011-in corso
Attività: Opere Edili e Architettoniche, Opere Stradali, Impianti Meccanici ed Elettrici
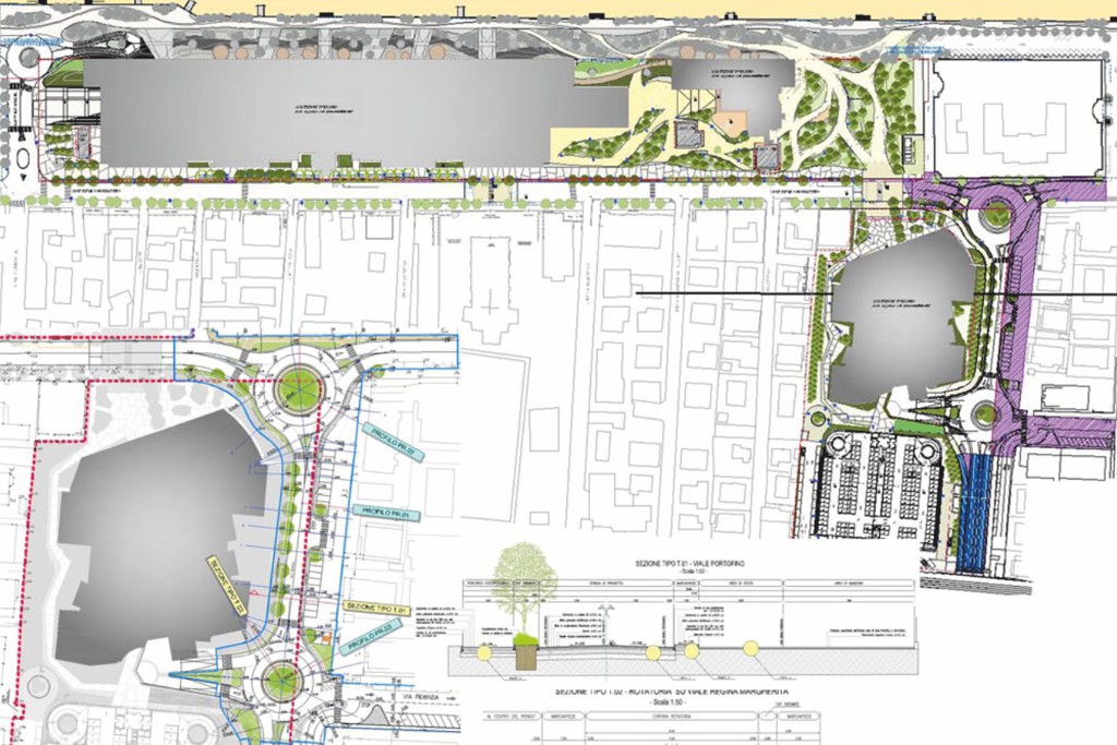
L'intervento consiste nella realizzazione di opere di urbanizzazione primaria e secondaria, nell’ambito del Piano Particolareggiato “ex Colonia Murri”, a Bellariva di Rimini, sul lungomare Tintori, nella zona compresa tra l’arenile via Regina Margherita. Il progetto di opere di urbanizzazione è propedeutico alla realizzazione di un Centro Turistico Commerciale che fa capo all’edificio storico dell’ex-Colonia Augusto Murri,, di una nuova galleria commerciale aperta al piano sottostrada sull’attuale sedime del lungomare. Le opere terminano con la sistemazione esterna delle aree a parco a verde, fino a giungere all’arenile, con zone attrezzate a servizi pubblici, percorsi pedonali, aree di sosta e quant’altro per realizzare un lungomare fruibile pedonalmente e attrattivo. Le opere di urbanizzazione comprendono anche la progettazione della viabilità sia su viale Regina Margherita che lungo via Portofino, fino a giungere all’area denominata ex-Ceschina. A fianco all’edificio della ex-colonia Murri vi sono gli edifici appartenenti all’area Mediterranea, adibita ad ospitare pubblici esercizi, sia con sede negli edifici esistenti che in nuovi da edificare.
Prestazioni: Progettazione definitiva ed esecutiva
Periodo di Esecuzione: 2011-in corso
Attività: Opere Edili e Architettoniche, Opere Stradali, Impianti Meccanici ed Elettrici
L'intervento consiste nella realizzazione di opere di urbanizzazione primaria e secondaria, nell’ambito del Piano Particolareggiato “ex Colonia Murri”, a Bellariva di Rimini, sul lungomare Tintori, nella zona compresa tra l’arenile via Regina Margherita. Il progetto di opere di urbanizzazione è propedeutico alla realizzazione di un Centro Turistico Commerciale che fa capo all’edificio storico dell’ex-Colonia Augusto Murri,, di una nuova galleria commerciale aperta al piano sottostrada sull’attuale sedime del lungomare. Le opere terminano con la sistemazione esterna delle aree a parco a verde, fino a giungere all’arenile, con zone attrezzate a servizi pubblici, percorsi pedonali, aree di sosta e quant’altro per realizzare un lungomare fruibile pedonalmente e attrattivo. Le opere di urbanizzazione comprendono anche la progettazione della viabilità sia su viale Regina Margherita che lungo via Portofino, fino a giungere all’area denominata ex-Ceschina. A fianco all’edificio della ex-colonia Murri vi sono gli edifici appartenenti all’area Mediterranea, adibita ad ospitare pubblici esercizi, sia con sede negli edifici esistenti che in nuovi da edificare.





